堺市西区浜寺石津町中の新築未入居物件(売買 新築一戸建て) | 堺市西区浜寺石津町中 | 「お買得物件.com」は、新築未入居物件を定価よりも安く購入できるサイトです。

堺市西区浜寺石津町中の新築未入居物件 | 堺市西区浜寺石津町中の不動産物件

開放感のある北角地の物件です。
建物完成(外構含む)につき、内覧可能です!
リビング・ダイニングが見渡せるフラットキッチン。
【新築一戸建て】 新築
価格 3,498万円 (税込)
南海電鉄南海本線 諏訪ノ森駅 徒歩9分
スマホ表示
物件ID:1188649
所在地 建物面積
土地面積
間取り 築年月
大阪府堺市西区浜寺石津町中 98.33m2
102.31m2
4LDK+WIC 2025/08

物件基本情報

▲1階間取り図
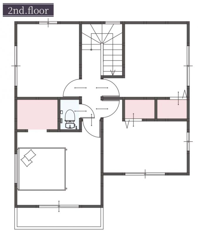
▲2階間取り図
物件種目 新築一戸建て
物件名称 堺市西区浜寺石津町中の新築未入居物件
所在地 大阪府堺市西区浜寺石津町中
交通
南海電鉄南海本線 諏訪ノ森駅 徒歩9分
阪堺電気軌道阪堺線 石津駅 徒歩5分
階数 2階建
建物構造 木造
建ぺい率/容積率 60% / 188%
駐車場 (2台)
学校 堺市立浜寺小学校 / 堺市立浜寺南中学校
設備・条件
  • ガス:都市ガス
  • 汚水:公共下水
  • 水道:公営水道
  • 雑排水:公共下水
  • フローリング
  • システムキッチン
  • 追い焚き
  • バス・トイレ別
  • 室内洗濯機置場
  • ガスコンロ
  • Wクローゼット
  • TVドアホン
  • コンロ三口
  • 浴室乾燥機
  • シャワー
  • 食器洗乾燥機
  • オートバス
  • トイレ2ヶ所
お買得物件ドットコム
Tel06-6484-8229
お気軽にお問い合わせください。

画像・写真

  • 区割り図
    区割り図
  • ダイニング・キッチン
    ダイニング・キッチン

周辺地図

地図を表示中...
ストリートビュー未対応エリアです。

物件詳細情報

物件用途 居住用 地目 宅地
間取り詳細 - 都市計画 市街化区域
建物向き 用途地域 第一種中高層住居専用地域
土地面積基準 - 接道 私道 北 幅員4.7m
私道 東 幅員4m
土地権利 所有権 私道面積 -
借地条件 - 道路位置指定 -
地代 - 不適合接道 -
建築確認番号 第KS125-0410-53141号 セットバック -
現況 新築未入居 国土法届出 不要
引渡時期 相談 取引態様 仲介
設備その他 -
特記事項 -
備考 -
情報更新日 2026/05/04 広告有効期限 2026/05/18
電話でお問い合わせ
お買得物件ドットコム 店舗情報
[所在地] 大阪府大阪市中央区南船場1-3-16
Tel06-6484-8229
お気軽にお問い合わせください。