堺市西区神野町の新築未入居物件(売買 新築一戸建て) | 堺市西区神野町 | 「お買得物件.com」は、新築未入居物件を定価よりも安く購入できるサイトです。

堺市西区神野町の新築未入居物件 | 堺市西区神野町の不動産物件

車庫付き3LDK
耐震等級3
省エネルギー住宅証明発行可能、ローン控除受けられます。
【新築一戸建て】 新築 駐車場あり
価格 2,700万円 (税込)
阪和線 上野芝駅 徒歩9分
スマホ表示
物件ID:1197176
所在地 建物面積
土地面積
間取り 築年月
大阪府堺市西区神野町 83.31m2
44.72m2
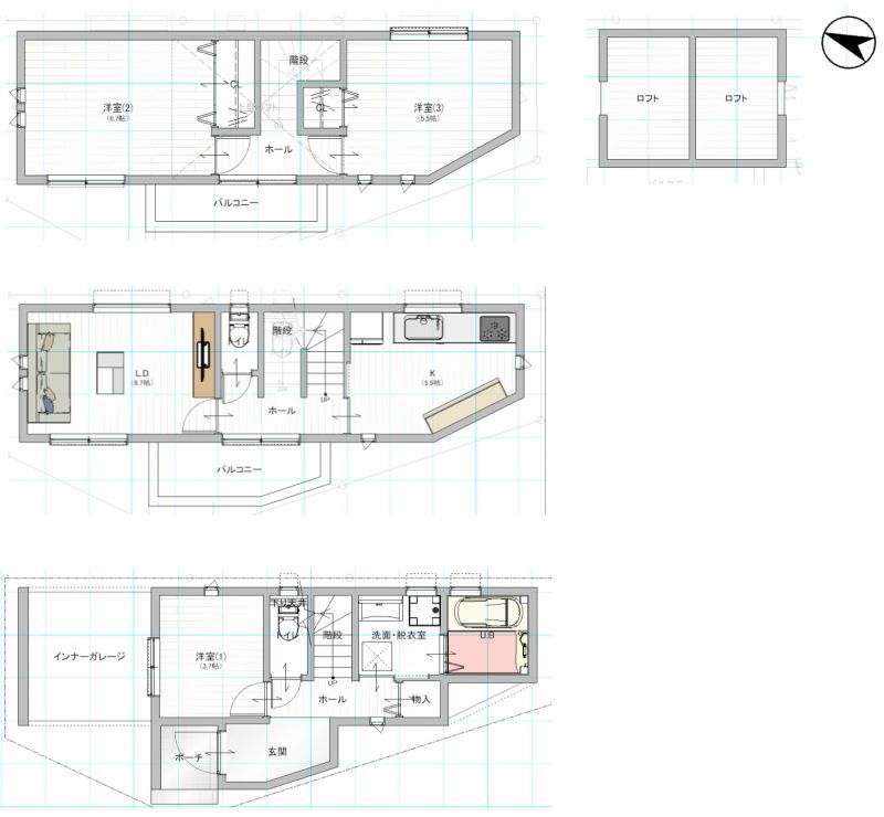
3LDK+ロフト 2024/09

物件基本情報

▲外観
▲間取り図
物件種目 新築一戸建て
物件名称 堺市西区神野町の新築未入居物件
所在地 大阪府堺市西区神野町
交通
阪和線 上野芝駅 徒歩9分
階数 3階建
建物構造 木造
建ぺい率/容積率 60% / 200%
駐車場 有 (1台)
学校 -
設備・条件
  • ガス:都市ガス
  • 汚水:公共下水
  • 水道:公営水道
  • 雑排水:公共下水
  • システムキッチン
  • TVドアホン
  • 浴室乾燥機
  • ロフト
  • トイレ2ヶ所
お買得物件ドットコム
Tel06-6484-8229
お気軽にお問い合わせください。

周辺地図

地図を表示中...
ストリートビュー未対応エリアです。

物件詳細情報

物件用途 居住用 地目 宅地
間取り詳細 - 都市計画 市街化区域
建物向き 西 用途地域 第二種中高層住居専用地域
土地面積基準 公簿 接道 公道 西 幅員7.9m (接面7.8m)
土地権利 所有権 私道面積 -
借地条件 - 道路位置指定 -
地代 - 不適合接道 -
建築確認番号 第R05確認建築近確0000899号 セットバック -
現況 - 国土法届出 -
引渡時期 - 取引態様 仲介
設備その他 -
特記事項 -
備考 -
情報更新日 2026/05/04 広告有効期限 2026/05/18
電話でお問い合わせ
お買得物件ドットコム 店舗情報
[所在地] 大阪府大阪市中央区南船場1-3-16
Tel06-6484-8229
お気軽にお問い合わせください。