上野芝町の新築未入居物件(売買 新築一戸建て) | 堺市西区上野芝町 | 「お買得物件.com」は、新築未入居物件を定価よりも安く購入できるサイトです。

上野芝町の新築未入居物件 | 堺市西区上野芝町の不動産物件

ZEH水準の省エネ住宅
ガスでパワフル乾燥!「乾太くん」を標準装備!
駐車2台可(車種によります)
【新築一戸建て】 新築
価格 4,580万円 (税込)
阪和線 上野芝駅 徒歩12分
スマホ表示
物件ID:1188696
所在地 建物面積
土地面積
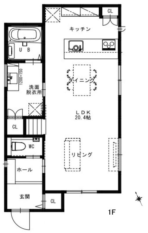
間取り 築年月
大阪府堺市西区上野芝町 100.61m2
108.74m2
4LDK 2025/07

物件基本情報

▲1階間取り図
▲2階間取り図
物件種目 新築一戸建て
物件名称 上野芝町の新築未入居物件
所在地 大阪府堺市西区上野芝町
交通
阪和線 上野芝駅 徒歩12分
階数 2階建
建物構造 木造
建ぺい率/容積率 60% / 200%
駐車場 (2台)
学校 堺市立上野芝小学校 / 堺市立津久野中学校
設備・条件
  • ガス:都市ガス
  • 汚水:公共下水
  • 水道:公営水道
  • 雑排水:公共下水
  • フローリング
  • システムキッチン
  • 洗浄便座
  • 室内洗濯機置場
  • Wクローゼット
  • カウンターキッチン
  • 浴室乾燥機
  • IHクッキングヒーター
  • バルコニー
  • 日当り良好
  • 食器洗乾燥機
お買得物件ドットコム
Tel06-6484-8229
お気軽にお問い合わせください。

画像・写真

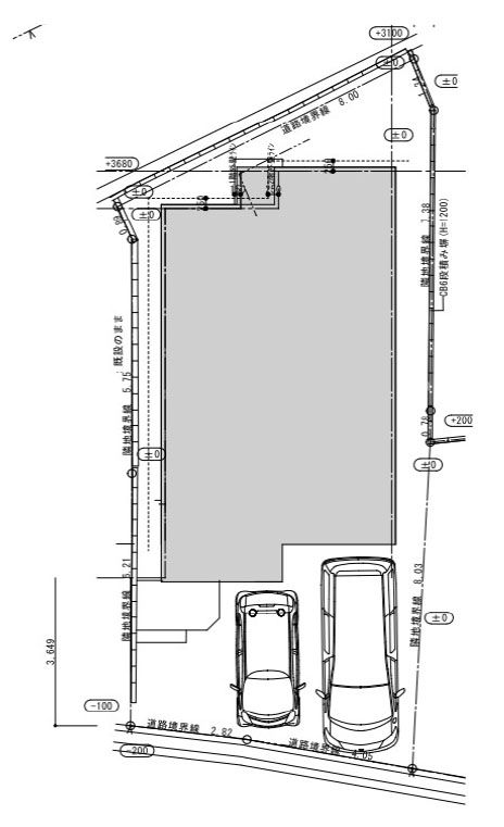
  • 区割り図
    区割り図

周辺地図

地図を表示中...
ストリートビュー未対応エリアです。

物件詳細情報

物件用途 居住用 地目 宅地
間取り詳細 - 都市計画 市街化区域
建物向き 用途地域 第二種中高層住居専用地域
土地面積基準 - 接道 公道 南 幅員6m
公道 北 幅員4.7m
土地権利 所有権 私道面積 -
借地条件 - 道路位置指定 -
地代 - 不適合接道 -
建築確認番号 第BVJ-EKB24-10-0580号 セットバック -
現況 新築未入居 国土法届出 -
引渡時期 相談 取引態様 仲介
設備その他 -
特記事項 -
備考 <耐震等級:3 1次エネルギー消費量等級:6 断熱等級:5> フラット35S(金利Aタイプ)利用可
情報更新日 2026/05/04 広告有効期限 2026/05/18
電話でお問い合わせ
お買得物件ドットコム 店舗情報
[所在地] 大阪府大阪市中央区南船場1-3-16
Tel06-6484-8229
お気軽にお問い合わせください。