平野区流町の新築未入居物件(売買 新築一戸建て) | 大阪市平野区流町 | 「お買得物件.com」は、新築未入居物件を定価よりも安く購入できるサイトです。
平野区流町の新築未入居物件 | 大阪市平野区流町の不動産物件
立地は閑静な住宅地です
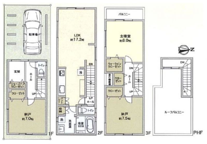
ルーフバルコニー付き
便利なシューズクローゼット
大阪メトロ谷町線「平野」駅まで徒歩8分
【新築一戸建て】
価格 4,080万円 (税込)
大阪市谷町線 平野駅 徒歩8分
- スマホ表示
-
物件ID:1188704
| 所在地 |
建物面積 土地面積 |
間取り |
築年月 |
| 大阪府大阪市平野区流町 |
104.91m2
52.51m2 |
3LDK |
2025/08 |
物件基本情報
| 物件種目 |
新築一戸建て |
| 物件名称 |
平野区流町の新築未入居物件 |
| 所在地 |
大阪府大阪市平野区流町 |
| 交通 |
大阪市谷町線 平野駅 徒歩8分 |
| 階数 |
3階建 |
| 建物構造 |
木造 |
| 建ぺい率/容積率 |
80% / 200% |
| 駐車場 |
- |
| 学校 |
平野南小学校 / 摂陽中学校 |
| 設備・条件 |
- ガス:都市ガス
- 汚水:公共下水
- 水道:公営水道
- 雑排水:公共下水
- フローリング
- システムキッチン
- バルコニー
- トイレ2ヶ所
|
周辺地図
物件詳細情報
| 物件用途 |
居住用 |
地目 |
宅地 |
| 間取り詳細 |
- |
都市計画 |
市街化区域 |
| 建物向き |
西 |
用途地域 |
第一種住居地域 |
| 土地面積基準 |
公簿 |
接道 |
公道 西 幅員4.1m (接面6m) |
| 土地権利 |
所有権 |
私道面積 |
- |
| 借地条件 |
- |
道路位置指定 |
- |
| 地代 |
- |
不適合接道 |
- |
| 建築確認番号 |
第KKK02405178号 |
セットバック |
- |
| 現況 |
新築未入居 |
国土法届出 |
- |
| 引渡時期 |
相談 |
取引態様 |
仲介 |
| 設備その他 |
- |
| 特記事項 |
- |
| 備考 |
※本物件北西側敷地よりに関西電力所有の電柱がございます。
※図面★部分→1F駐車場 開口部分に目隠し設置予定 |
| 情報更新日 |
2026/05/04 |
広告有効期限 |
2026/05/18 |