大阪市東住吉区鷹合の新築未入居物件(売買 新築一戸建て) | 大阪市東住吉区鷹合 | 「お買得物件.com」は、新築未入居物件を定価よりも安く購入できるサイトです。

大阪市東住吉区鷹合の新築未入居物件 | 大阪市東住吉区鷹合の不動産物件

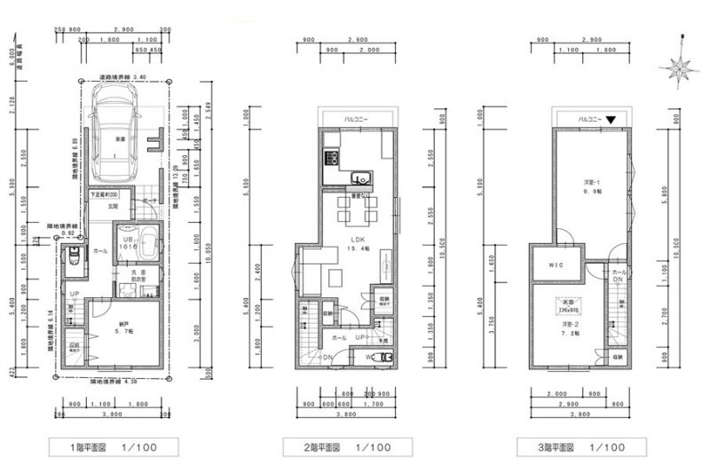
全居室に収納有り
ウォークインクローゼット有り
3階洋室(7.2帖)に天窓有り
最寄り駅の針中野駅には近商ストア針中野店があり、大変便利です
【新築一戸建て】 新築 駐車場あり
価格 3,880万円 (税込)
近鉄南大阪線 針中野駅 徒歩4分
スマホ表示
物件ID:1195812
所在地 建物面積
土地面積
間取り 築年月
大阪府大阪市東住吉区鷹合 98.53m2
50.59m2
3LDK 2026/01

物件基本情報

▲外観
▲間取り
物件種目 新築一戸建て
物件名称 大阪市東住吉区鷹合の新築未入居物件
所在地 大阪府大阪市東住吉区鷹合
交通
近鉄南大阪線 針中野駅 徒歩4分
階数 3階建
建物構造 木造
建ぺい率/容積率 70% / 200%
駐車場 有 (1台)
学校 -
設備・条件
  • フローリング
  • Wクローゼット
  • バルコニー
お買得物件ドットコム
Tel06-6484-8229
お気軽にお問い合わせください。

周辺地図

地図を表示中...
ストリートビュー未対応エリアです。

物件詳細情報

物件用途 居住用 地目 宅地
間取り詳細 - 都市計画 市街化区域
建物向き 北東 用途地域 第二種中高層住居専用地域
土地面積基準 公簿 接道 公道 北西 幅員6m
土地権利 所有権 私道面積 -
借地条件 - 道路位置指定 -
地代 - 不適合接道 -
建築確認番号 - セットバック -
現況 - 国土法届出 不要
引渡時期 - 取引態様 仲介
設備その他 -
特記事項 -
備考 準防火地域
情報更新日 2026/04/21 広告有効期限 2026/05/05
電話でお問い合わせ
お買得物件ドットコム 店舗情報
[所在地] 大阪府大阪市中央区南船場1-3-16
Tel06-6484-8229
お気軽にお問い合わせください。